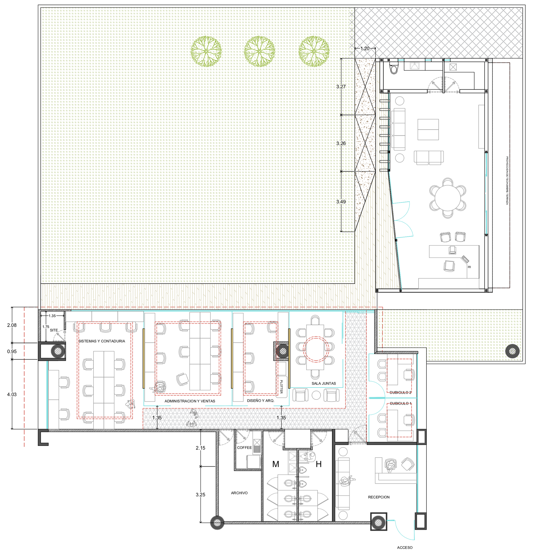
Oficina ubicada en Distrito Sonata, en el tercer nivel de Plaza Punta.
Galería
$340M2 + MTTO + IVA
Condiciones de renta
- CONTRATO MÍNIMO: 3 AÑOS
- 2 MESES DE DEPOSITO
- 2 RENTAS ADELANTADAS
- FIANZA O AVLA CON PROPIEDAD EN GARANTÍA
Entrega de local sin mobiliario
El mobiliario de la oficina esta en venta
Contáctanos
Compartenos tus opiniones







